Mark Stevens is a Boston-based residential design architect offering professional services for custom renovations, additions, and new construction. He is a registered architect in Massachusetts and a LEED accredited professional. He is a member of the American Institute of Architects and the Boston Society of Architects and holds a Master of Architecture degree from Harvard University Graduate School of Design.  


Approach

From the time I began my practice in 2000, I have always considered each new project as an opportunity to draw inspiration from the unique story of my client. Discovering a client’s aspirations and translating these into clear project goals, I strive to develop environmentally-conscious design solutions which not only satisfy programmatic demands and budgetary factors, but also reflect aspects of the client’s personality, interests, and lifestyle. I believe a successful project is as much dependent upon a strong and inspired design solution as it is upon a collaborative approach between the architect, the client, and ultimately the builder. 

‍ 

My design process also begins with careful investigation and documentation of the building site, existing structures, and surrounding context — a process which itself often sparks configurative ideas and discussion for the start of schematic design work. During this early stage, research and analysis of applicable building codes, local zoning by-laws, and building science helps to clarify the range of possibilities for the given set of circumstances. With synthesis, a parallel creative response typically begins, one in which architectural concepts for organizing space and structure emerge.   


I then explore these concepts through a combination of diagramming, sketching, drafting, and modeling. As part of a tandem exploration of aesthetics and materials, I encourage my clients to collect and share imagery of inspirational architecture, art, textiles, and outdoor spaces — all with the aim of distilling these down to a few common underlying themes that can shape and inform the schematic design. 


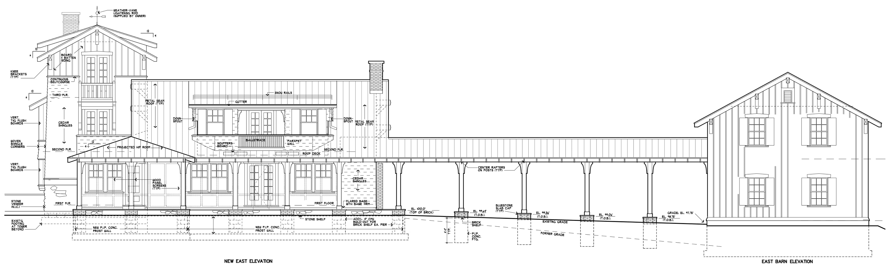
With the approval of a schematic design, the next step is the preparation of working drawings and specifications which together are called Construction Documents. The number of drawings and details needed for any given project will vary considerably based on the size and complexity of the proposed construction, but the Construction Documents typically form the basis for permitting, pricing, and building the project. Depending on the project, completing these drawings often involves teaming or coordinating with other design professionals including structural and mechanical engineers, an interior architect, a building energy modeler, and/or a landscape architect.          


The process of building or renovating a structure is often a daunting undertaking for many clients. In addition to arriving at an optimal design solution, there is also the process of finding and selecting a well-qualified builder, obtaining quotes, assisting with obtaining building permits, and then monitoring the construction process. As a full-service architect, I am committed not just to a productive design and planning process, but also to this final phase, helping to ensure each client receives a high-quality finished product. To this end, construction-phase services typically include regular site visits, team meetings, and frequent communication with the general contractor and subcontractors.  As the client’s representative with expertise, I also regularly observe the construction progress, coordinate for owner-supplied fittings, review and approve production shop drawings, assist with reviewing contractor invoices as needed, and provide on-going guidance and client support on any outstanding design-related matters.